About Monarch Rosewood in Goregaon West
With just 11 residences in a single tower, Monarch Rosewood offers an intimate and peaceful living environment rarely found in Mumbai’s urban neighborhoods. Each residence has been meticulously designed to ensure optimum space utilization, cross ventilation, and natural light, making the interiors both functional and serene. Whether you are a young couple, a growing family, or an investor looking for dependable assets in a high-demand location, this project is tailored for long-term satisfaction.
Residents benefit from essentials like secure car parking, reliable 24x7 water supply, and fire safety systems, ensuring everyday peace of mind. The building is designed for durability and low maintenance, making it an excellent option for those who prioritize smart living without unnecessary frills.
Strategically positioned in Goregaon West, Monarch Rosewood provides easy access to major roads, public transport hubs, schools, markets, and healthcare facilities. The location strikes the perfect balance between urban accessibility and neighborhood charm, offering residents a lifestyle where everything is within reach yet never overwhelming.
With construction already completed and ready-to-move status in place, Monarch Rosewood stands as a solid choice for buyers looking for immediate occupancy and a stress-free buying experience. Blending simplicity with reliability, this boutique project is an ideal gateway into one of Mumbai’s most evolving residential zones.
Unit Details :
1 BHK Flats
Carpet Area : 394 Sq.ft, 422 Sq.ft.
2 BHK Flats
Carpet Area : 558 Sq.ft, 629 Sq.ft.
Building Details :
11 Units / 1 Tower
Total Project Area 0.11 acres
RERA Details
| Building Name | Possession | RERA ID |
|---|---|---|
| Monarch Rosewood | Under Construction April 2025 |
P51800046795 View QR Code RERA Website: https://maharera.maharashtra.gov.in/ |
Amenities in Monarch Rosewood
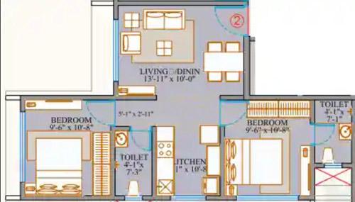
Unit Details & Floor Plans in Monarch Rosewood
| Floor Plan | Inclusion | Area Details | Possession | Estimated Price |
|---|---|---|---|---|
![]() | 1 Bedroom1 Bathroom | Carpet Area : 394 Sq.ft | Under Construction April 2025 | 98.49 Lacs ( 24997 per sq.ft) View Offers |
![]() | 1 Bedroom1 Bathroom | Carpet Area : 422 Sq.ft | Under Construction April 2025 | 1.06 Cr ( 25118 per sq.ft) View Offers |
| Floor Plan | Inclusion | Area Details | Possession | Estimated Price |
|---|---|---|---|---|
![]() | 2 Bedroom2 Bathroom | Carpet Area : 558 Sq.ft | Under Construction April 2025 | 1.40 Cr ( 25090 per sq.ft) View Offers |
![]() | 2 Bedroom2 Bathroom | Carpet Area : 629 Sq.ft | Under Construction April 2025 | 1.57 Cr ( 24960 per sq.ft) View Offers |
Property Experts in Monarch Rosewood
Sandeep Thakur
Area Expert Agent
Location
About Goregaon West
Goregaon West stands as one of Mumbai's most sought-after real estate destinations, offering unparalleled investment opportunities in the heart of the western suburbs. This dynamic locality seamlessly blends residential comfort with commercial vibrancy, making it an ideal choice for both homebuyers and property investors seeking long-term growth potential. The area's strategic positioning near Filmcity, SEEPZ (Santacruz Electronic Export Processing Zone), and major IT hubs has transformed Goreg... learn more ↗
Monarch Rosewood Location Map
Lokmanya Tilak Road No 4, Goregaon West, Mumbai
Home Loan
Approved for this project by the following bank/s:
Interested in Home Loan?
Customized Home Loan Solutions, EMI Calculator, Check Eligibility & much more...
View More Resale & Rental Properties in Monarch Rosewood
in Monarch Rosewood
FAQs on Monarch Rosewood
(Frequently Asked Questions)
Where is Monarch Rosewood Exactly located?
Is Monarch Rosewood Rera Registered?
What are unit options available in Monarch Rosewood?
What is the starting price of Flats in Monarch Rosewood?
When is the Possession of Flats in Monarch Rosewood?
About Developer
Monarch Lifespace LLP
Monarch Lifespace LLP... learn more ↗
Enquire Now
Similar Residential Projects in Goregaon West Mumbai
Kalpataru Radiance
by Kalpataru Limited
2 BHK, 3 BHK and 4 BHK Apartments
Siddharth Nagar, Goregaon West, Mumbai
3.80 Cr Onwards*
Oxford Navrang Crystal
by Oxford Realtors (India) Private Limited
1 BHK, 2 BHK, 3 BHK Flats
Siddharth Nagar, Goregaon West, Mumbai
1.06 Cr Onwards
Sushanku Avenue 36
by Sushanku Realty Pvt Ltd
1 RK, 1 BHK, 2 BHK Flats
Siddharth Nagar, Goregaon West, Mumbai
70 Lacs Onwards
Sushanku Avenue 37
by Sushanku Realty Pvt Ltd
2 BHK, 4 BHK Flats
Siddharth Nagar, Goregaon West, Mumbai
1.63 Cr Onwards
DGS Sheetal Kiara
by DGS Group
1 BHK, 2 BHK, 3 BHK, 4 BHK, 6 BHK Flats
Unnat Nagar, Goregaon West, Mumbai
99 Lacs Onwards
Ekta Tripolis Phase 2 Tower C Neopolis
by Ekta Group
2 BHK, 2.5 BHK, 3 BHK Flats
Siddharth Nagar, Goregaon West, Mumbai
2.95 Cr Onwards













