About Crystal Hitendra Dhamm Shabha CHS in Goregaon West
The project stands out with its focus on quality construction, strategic location, and smart planning. Residents will enjoy a vibrant community atmosphere with amenities tailored to support both daily living and leisure. Landscaped gardens and a dedicated children’s play area bring nature and joy to your doorstep, while water storage systems, firefighting measures, and CCTV surveillance ensure peace of mind. Whether it's the reliable power backup, the intercom facility for security, or the attention to vastu principles, every element is designed for comfort and functionality.
Currently under construction and progressing steadily, this RERA-approved development promises timely delivery by December 2026. The compact footprint of the project, spread across a well-utilized plot, ensures low density and a more peaceful living experience, a rare find in the bustle of Mumbai. Each unit is crafted with attention to detail, promoting natural light, ventilation, and practical space usage — ideal for families, professionals, and investors alike.
With easy access to local conveniences, public transport, and lifestyle hubs, Crystal Hitendra Dhamm Shabha CHS is not just a place to live, but a place to belong. It invites you to step into a future where thoughtful design, urban connectivity, and community spirit come together effortlessly.
Unit Details :
1 BHK Flats
Carpet Area : 428 Sq.ft.
2 BHK Flats
Carpet Area : 603 Sq.ft, 648 Sq.ft.
4 BHK (2 BHK + 2 BHK Jodi) Flats
Carpet Area : 1250 Sq.ft.
Building Details
Total project area 0.18 Acre / Total Floors - G+22 / Total Building - 1 / Total Units - 72
RERA Details
| Building Name | Possession | RERA ID |
|---|---|---|
| Crystal Hitendra Dhamm Shabha CHS | Under Construction December 2026 |
P51800049489 View QR Code RERA Website: https://maharera.maharashtra.gov.in/ |
Amenities in Crystal Hitendra Dhamm Shabha CHS
Unit Details & Floor Plans in Crystal Hitendra Dhamm Shabha CHS
| Floor Plan | Inclusion | Area Details | Possession | Estimated Price |
|---|---|---|---|---|
![]() | 1 Bedroom1 Bathroom | Carpet Area : 428 Sq.ft | Under Construction December 2026 | 1.00 Cr ( 23364 per sq.ft) View Offers |
| Floor Plan | Inclusion | Area Details | Possession | Estimated Price |
|---|---|---|---|---|
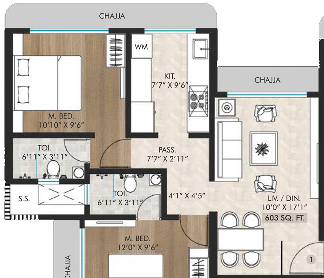
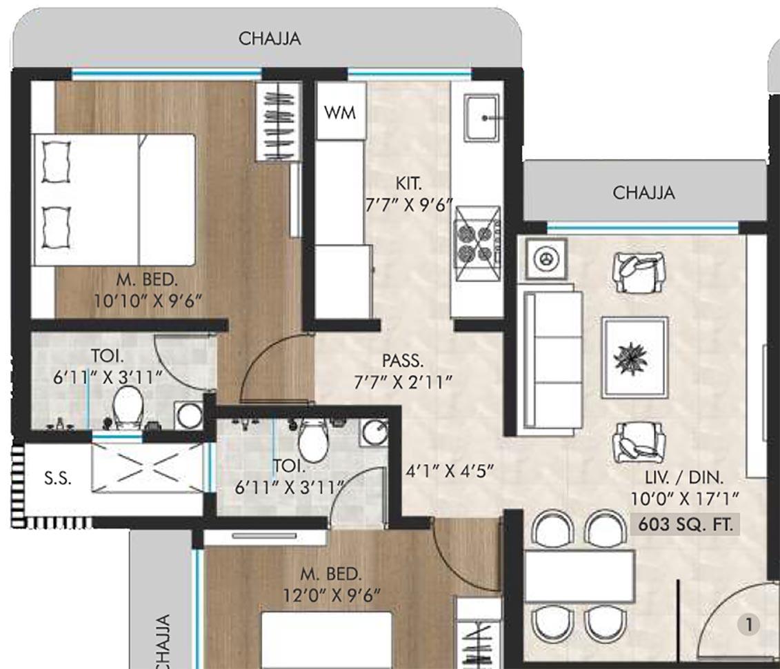
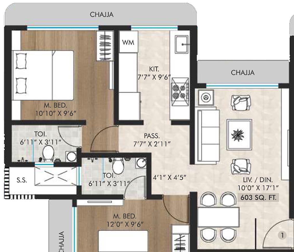
![]() | 2 Bedroom2 Bathroom | Carpet Area : 603 Sq.ft | Under Construction December 2026 | 1.44 Cr ( 23881 per sq.ft) View Offers |
![]() | 2 Bedroom2 Bathroom | Carpet Area : 648 Sq.ft | Under Construction December 2026 | 1.55 Cr ( 23920 per sq.ft) View Offers |
Property Experts in Crystal Hitendra Dhamm Shabha CHS
Sandeep Thakur
Area Expert Agent
Location
About Goregaon West
Goregaon West stands as one of Mumbai's most sought-after real estate destinations, offering unparalleled investment opportunities in the heart of the western suburbs. This dynamic locality seamlessly blends residential comfort with commercial vibrancy, making it an ideal choice for both homebuyers and property investors seeking long-term growth potential. The area's strategic positioning near Filmcity, SEEPZ (Santacruz Electronic Export Processing Zone), and major IT hubs has transformed Goreg... learn more ↗
Crystal Hitendra Dhamm Shabha CHS Location Map
Shastri Nagar, Goregaon West, Mumbai

Home Loan
Approved for this project by the following bank/s:
Interested in Home Loan?
Customized Home Loan Solutions, EMI Calculator, Check Eligibility & much more...
View More Resale & Rental Properties in Crystal Hitendra Dhamm Shabha CHS
in Crystal Hitendra Dhamm Shabha CHS
FAQs on Crystal Hitendra Dhamm Shabha CHS
(Frequently Asked Questions)
Where is Crystal Hitendra Dhamm Shabha CHS Exactly located?
Is Crystal Hitendra Dhamm Shabha CHS Rera Registered?
What are unit options available in Crystal Hitendra Dhamm Shabha CHS?
What is the starting price of Flats in Crystal Hitendra Dhamm Shabha CHS?
When is the Possession of Flats in Crystal Hitendra Dhamm Shabha CHS?
About Developer
Crystal Construction Company
Crystal Construction Company, is a prestigious, respected and trusted Real Estate and construction company of our country. This realty concern is best known for its superior and truly global standards. In fact, this is the company that sets the standards for other prominent Realty concerns. Presently Crystal Construction Company is synonymous to international standards. The company’s structures whether it is a residential, industrial or a c... learn more ↗
Enquire Now
Similar Residential Projects in Goregaon West Mumbai
Kalpataru Radiance
by Kalpataru Limited
2 BHK, 3 BHK and 4 BHK Apartments
Siddharth Nagar, Goregaon West, Mumbai
3.80 Cr Onwards*
Oxford Navrang Crystal
by Oxford Realtors (India) Private Limited
1 BHK, 2 BHK, 3 BHK Flats
Siddharth Nagar, Goregaon West, Mumbai
1.06 Cr Onwards
Sushanku Avenue 36
by Sushanku Realty Pvt Ltd
1 RK, 1 BHK, 2 BHK Flats
Siddharth Nagar, Goregaon West, Mumbai
70 Lacs Onwards
Sushanku Avenue 37
by Sushanku Realty Pvt Ltd
2 BHK, 4 BHK Flats
Siddharth Nagar, Goregaon West, Mumbai
1.63 Cr Onwards
DGS Sheetal Kiara
by DGS Group
1 BHK, 2 BHK, 3 BHK, 4 BHK, 6 BHK Flats
Unnat Nagar, Goregaon West, Mumbai
99 Lacs Onwards
Ekta Tripolis Phase 2 Tower C Neopolis
by Ekta Group
2 BHK, 2.5 BHK, 3 BHK Flats
Siddharth Nagar, Goregaon West, Mumbai
2.95 Cr Onwards

















