About Asmi Vintage in Goregaon West
The project features well-laid-out 1 and 2 BHK apartments, crafted with attention to space efficiency, ventilation, and natural light. Each residence is designed to offer a practical yet elegant living experience, perfect for today’s dynamic urban lifestyles. A strong emphasis on architectural planning and interior functionality ensures that every inch of space is optimally utilized, offering residents an environment that feels both spacious and welcoming.
Asmi Vintage is enriched with essential lifestyle amenities designed to enhance daily life. The beautifully landscaped garden and children's play area offer peaceful retreats for relaxation and recreation, while features like car parking, lift access, and round-the-clock water supply add layers of convenience. Safety and security are prioritized with provisions like power backup, CCTV surveillance, fire-fighting systems, and dedicated security personnel, ensuring complete peace of mind for residents.
The development adheres to Vaastu and Feng Shui principles, reflecting a deep understanding of spatial harmony and positive energy flow. Supported by reliable maintenance staff and waste disposal systems, the infrastructure is geared toward long-term ease and sustainability. With its ready-to-move status, Asmi Vintage is ideal for homebuyers looking to upgrade to a calm, well-connected neighborhood in Mumbai. Blending privacy, practicality, and style, this address stands as a refined example of modern urban living in a timeless setting.
Unit Details :
1 BHK Apartments
Carpet Area : 412 Sq.ft
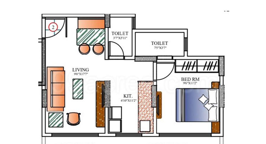
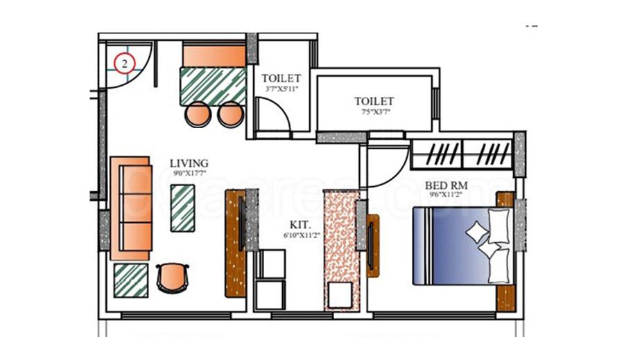
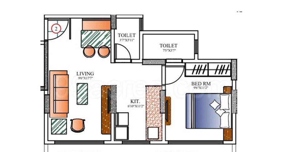
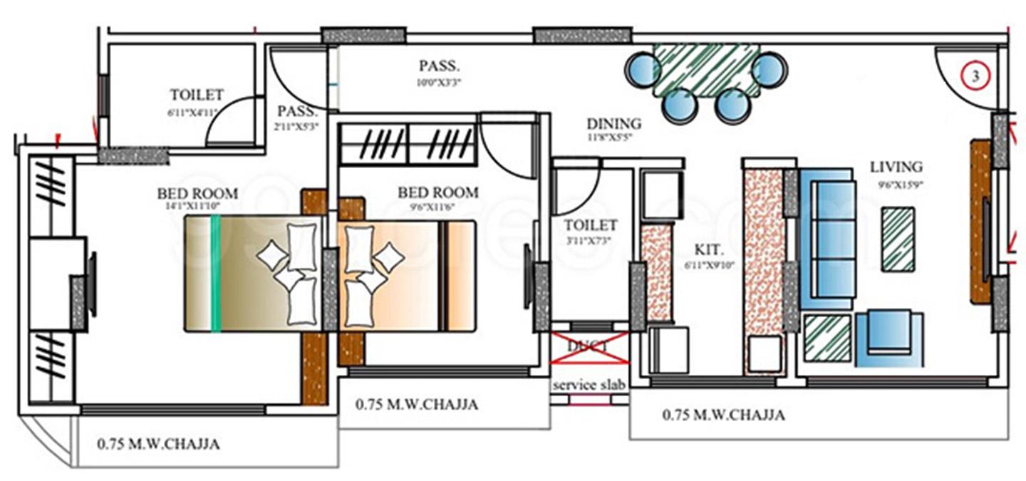
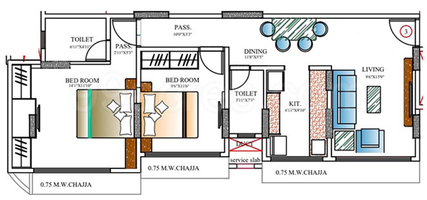
2 BHK Apartments
Carpet Area : 672 Sq.ft, 704 Sq.ft
Building Details
30 Units
RERA Details
| Building Name | Possession | RERA ID |
|---|---|---|
| Asmi Vintage | Under Construction June 2023 |
P51800031906 View QR Code RERA Website: https://maharera.maharashtra.gov.in/ |
Amenities in Asmi Vintage
Unit Details & Floor Plans in Asmi Vintage
| Floor Plan | Inclusion | Area Details | Possession | Estimated Price |
|---|---|---|---|---|
![]() | 1 Bedroom1 Bathroom | Carpet Area : 412 Sq.ft | Ready To Move June 2023 | On Request View Offers |
| Floor Plan | Inclusion | Area Details | Possession | Estimated Price |
|---|---|---|---|---|
![]() | 2 Bedroom2 Bathroom | Carpet Area : 672 Sq.ft | Ready To Move June 2023 | On Request View Offers |
![]() | 2 Bedroom2 Bathroom | Carpet Area : 704 Sq.ft | Ready To Move June 2024 | On Request View Offers |
Property Experts in Asmi Vintage
Sandeep Thakur
Area Expert Agent
Location
About Goregaon West
Goregaon West stands as one of Mumbai's most sought-after real estate destinations, offering unparalleled investment opportunities in the heart of the western suburbs. This dynamic locality seamlessly blends residential comfort with commercial vibrancy, making it an ideal choice for both homebuyers and property investors seeking long-term growth potential. The area's strategic positioning near Filmcity, SEEPZ (Santacruz Electronic Export Processing Zone), and major IT hubs has transformed Goreg... learn more ↗
Asmi Vintage Location Map
Shri Nagar, Goregaon West, Mumbai
Home Loan
Approved for this project by the following bank/s:
Interested in Home Loan?
Customized Home Loan Solutions, EMI Calculator, Check Eligibility & much more...
View More Resale & Rental Properties in Asmi Vintage
in Asmi Vintage
FAQs on Asmi Vintage
(Frequently Asked Questions)
Where is Asmi Vintage Exactly located?
Is Asmi Vintage Rera Registered?
What are unit options available in Asmi Vintage?
What is the starting price of Flats in Asmi Vintage?
When is the Possession of Flats in Asmi Vintage?
About Developer
Asmi Realtors
Asmi Realtors, is a group of dynamic individuals committed to quality construction. Time lines and clinet satisfaction are two staunch pillars that guide the working of the firm. The management has been instruments in delibering a large number of High-End luxury apartments and multi-storey apartments. It has built a reputation for quality in construction, transparent and financial dealings and on-time delivery. The company has projected many deve... learn more ↗
Enquire Now
Similar Residential Projects in Goregaon West Mumbai
Kalpataru Radiance
by Kalpataru Limited
2 BHK, 3 BHK and 4 BHK Apartments
Siddharth Nagar, Goregaon West, Mumbai
3.80 Cr Onwards*
Oxford Navrang Crystal
by Oxford Realtors (India) Private Limited
1 BHK, 2 BHK, 3 BHK Flats
Siddharth Nagar, Goregaon West, Mumbai
1.06 Cr Onwards
Sushanku Avenue 36
by Sushanku Realty Pvt Ltd
1 RK, 1 BHK, 2 BHK Flats
Siddharth Nagar, Goregaon West, Mumbai
70 Lacs Onwards
Sushanku Avenue 37
by Sushanku Realty Pvt Ltd
2 BHK, 4 BHK Flats
Siddharth Nagar, Goregaon West, Mumbai
1.63 Cr Onwards
DGS Sheetal Kiara
by DGS Group
1 BHK, 2 BHK, 3 BHK, 4 BHK, 6 BHK Flats
Unnat Nagar, Goregaon West, Mumbai
99 Lacs Onwards
Ekta Tripolis Phase 2 Tower C Neopolis
by Ekta Group
2 BHK, 2.5 BHK, 3 BHK Flats
Siddharth Nagar, Goregaon West, Mumbai
2.95 Cr Onwards
Discuss / Review
Comment-
Tejash Mirani
- 17th Mar 2022
The shopping malls are quite feasible. There are shops for everything which are quite accessible. There are street lights everywhere and it's quite safe to travel out at late night. there's no water shortage within the area and no frequent electricity cuts which is sort of good. There are well maintained parks within the area which helps keep up healthiness and development of the body.













