About HPA Vicenza Regency in Vikhroli East
Vicenza Residency offers premium 1 BHK and 2 BHK Apartments in Vikhroli East, Mumbai. With modern amenities, spacious layouts, and a prime location in Tagore Nagar , it redefines urban living. Explore floor plans, prices, and reviews today!
Vicenza Residency is an ultimate reflection of the urban chic lifestyle located in Vikhroli East, Mumbai. The project hosts in its lap exclusively designed Residential Flats, each being an epitome of elegance and simplicity. Vicenza Residency is meticulously designed with unbound convenience & the best of amenities and are an effortless blend of modernity and elegance.
Location:
Vikhroli East is a major plus for buyers looking to invest in property in Mumbai. It is one of the most prestigious address of Mumbai with many facilities and utilities nearby. The locality is encapsulated with verdant surroundings which further provides easy access to malls, schools, banks, ATMs, super markets, etc,.
Residences:
Apartments at Vicenza Residency are delicate, well planned and are well ventilated. The Apartments are catered with specifications like .
For Further Details, Assistance, RERA Number, Price Plans, Architectural Details Kindly Phone Us, Mail Us Or Fill The Query Form.
Unit Details :
1 BHK Apartments:
Area: 640 Sq.ft & 660 Sq.ft
2 BHK Apartments:
Area: 938 Sq.ft, 939 Sq.ft, 947 Sq.ft, 962 Sq.ft, 966 Sq.ft, 975 Sq.ft, 978 Sq.ft & 981 Sq.ft
Building Details:
6 Towers / 40 Floors / Project Area: 5.08 Acres
RERA Details
| Building Name | Possession | RERA ID |
|---|---|---|
| HPA Vicenza Regency | New Launch 2023 |
P51800011517 View QR Code RERA Website: https://maharera.maharashtra.gov.in/ |
Amenities in HPA Vicenza Regency
Unit Details & Floor Plans in HPA Vicenza Regency
| Floor Plan | Inclusion | Area Details | Possession | Estimated Price |
|---|---|---|---|---|
![]() | 1 Bedroom1 Bathroom | Built-up Area : 640 Sq.ft | Under Construction 2023 | On Request View Offers |
![]() | 1 Bedroom1 Bathroom | Built-up Area : 660 Sq.ft | Under Construction 2023 | On Request View Offers |
| Floor Plan | Inclusion | Area Details | Possession | Estimated Price |
|---|---|---|---|---|
![]() | 2 Bedroom2 Bathroom | Built-up Area : 938 Sq.ft | Under Construction 2023 | On Request View Offers |
![]() | 2 Bedroom2 Bathroom | Built-up Area : 939 Sq.ft | Under Construction 2023 | On Request View Offers |
![]() | 2 Bedroom2 Bathroom | Built-up Area : 947 Sq.ft | Under Construction 2023 | On Request View Offers |
![]() | 2 Bedroom2 Bathroom | Built-up Area : 975 Sq.ft | Under Construction 2023 | On Request View Offers |
![]() | 2 Bedroom2 Bathroom | Built-up Area : 978 Sq.ft | Under Construction 2023 | On Request View Offers |
![]() | 2 Bedroom2 Bathroom | Built-up Area : 981 Sq.ft | Under Construction 2023 | On Request View Offers |
Property Experts in HPA Vicenza Regency
Sandeep Thakur
Area Expert Agent
Location
About Vikhroli East
Vikhroli East stands as Mumbai's most promising real estate destination, strategically positioned between the bustling commercial districts of Powai and Andheri. This emerging locality has transformed into a sought-after residential and investment hub, attracting homebuyers and investors with its perfect blend of urban convenience and natural beauty. The area's real estate landscape encompasses diverse properties ranging from premium residential towers to commercial complexes, catering to varie... learn more ↗
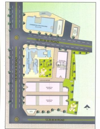
HPA Vicenza Regency Location Map
Near JVLR, Tagore Nagar, Vikhroli East, Mumbai

Home Loan
Approved for this project by the following bank/s:
Interested in Home Loan?
Customized Home Loan Solutions, EMI Calculator, Check Eligibility & much more...
View More Resale & Rental Properties in HPA Vicenza Regency
in HPA Vicenza Regency
FAQs on Vicenza Residency
(Frequently Asked Questions)
Where is Vicenza Residency Exactly located?
Is Vicenza Residency Rera Registered?
What are unit options available in Vicenza Residency?
What is the starting price of Flats in Vicenza Residency?
What are the nearest landmarks?
About Developer
HPA Spaces Pvt Ltd
For over two decades, Hemant Parikh and Associates are designing & creating landmarks with State of art designs, updated technologies and by availing latest amenities to the clients.The company have a successful track record of standing at par with customer's expectations by providing lifestyle housing at cost effective technologies. It is very important to develop and deliver the suitable lifestyles to the clients in their budget. With our d... learn more ↗
Enquire Now
Similar Residential Projects in Vikhroli East Mumbai
Vaibhavlaxmi Royal Stone
by Vaibhavlaxmi Builders And Developers
1 BHK & 2 BHK
Kannamwar Nagar 1, Vikhroli East, Mumbai
68 Lacs Onwards*
Haware Altura
by Haware Builders
1 BHK, 2 BHK Flats
Kannamwar Nagar 1, Vikhroli East, Mumbai
90 Lacs Onwards*
Nirvaana Heights
by Shree Dham Group
1 BHK and 2 BHK Flats
Tagore Nagar , Vikhroli East, Mumbai
66 Lacs Onwards*
Suji Ekdant
by Suji Platinum Builders
1 BHK, 2 BHK Flats
Kannamwar Nagar 1, Vikhroli East, Mumbai
76.09 Lakhs Onwards
Reliable Unique Fortune
by Reliable India Corporation
1 BHK, 2 BHK Flats
Kannamwar Nagar 1, Vikhroli East, Mumbai
59.09 Lakhs Onwards
M K Oasis
by Matrix Constructions
1 BHK, 2 BHK Flats
Kannamwar Nagar 2, Vikhroli East, Mumbai
70 Lakhs Onwards












