About Sadguru Avighna in Malad West
Set within a single G+10 storey tower, the residences at Sadguru Avighna are crafted to optimize space, natural light, and airflow. The layouts are functional yet aesthetically pleasing, offering a peaceful refuge amidst the hustle of city life. With Vaastu-compliant design principles, every home is tailored to support positivity, wellbeing, and balanced living. The commercial units, both shops and offices, are strategically positioned to attract high footfall and maximize visibility, making it a sound choice for growing businesses and entrepreneurs.
The development is packed with lifestyle amenities including a gymnasium, swimming pool, landscaped garden, children’s play area, indoor games room, and round-the-clock water supply. Modern security systems such as CCTV surveillance, intercom facility, and professional security personnel ensure peace of mind, while maintenance staff and society office facilities provide day-to-day operational support.
Located just minutes from daily essentials and social infrastructure such as schools, colleges, hospitals, restaurants, and shopping malls, Sadguru Avighna offers unmatched urban connectivity. Proximity to SV Road, Link Road, the Western Express Highway, and metro and railway stations makes commuting seamless, while recreational spaces like Goregaon Sports Club and religious landmarks like Jain Mandir are within easy reach. Sadguru Avighna is where residential comfort meets commercial opportunity—perfectly placed for a life of convenience and growth.
Unit Details :
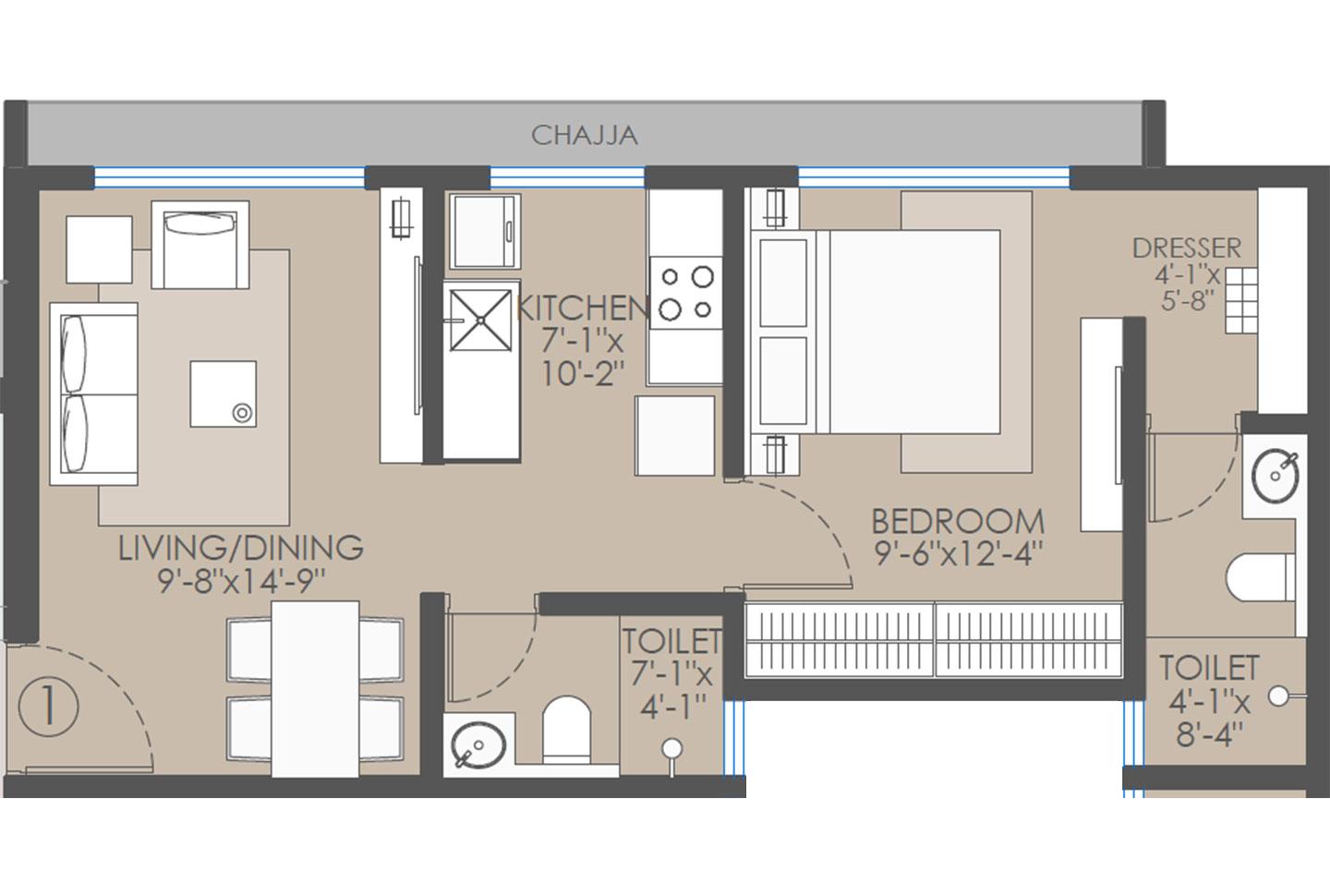
1 BHK Flats
Carpet Area : 428 Sq.ft, 446 Sq.ft.
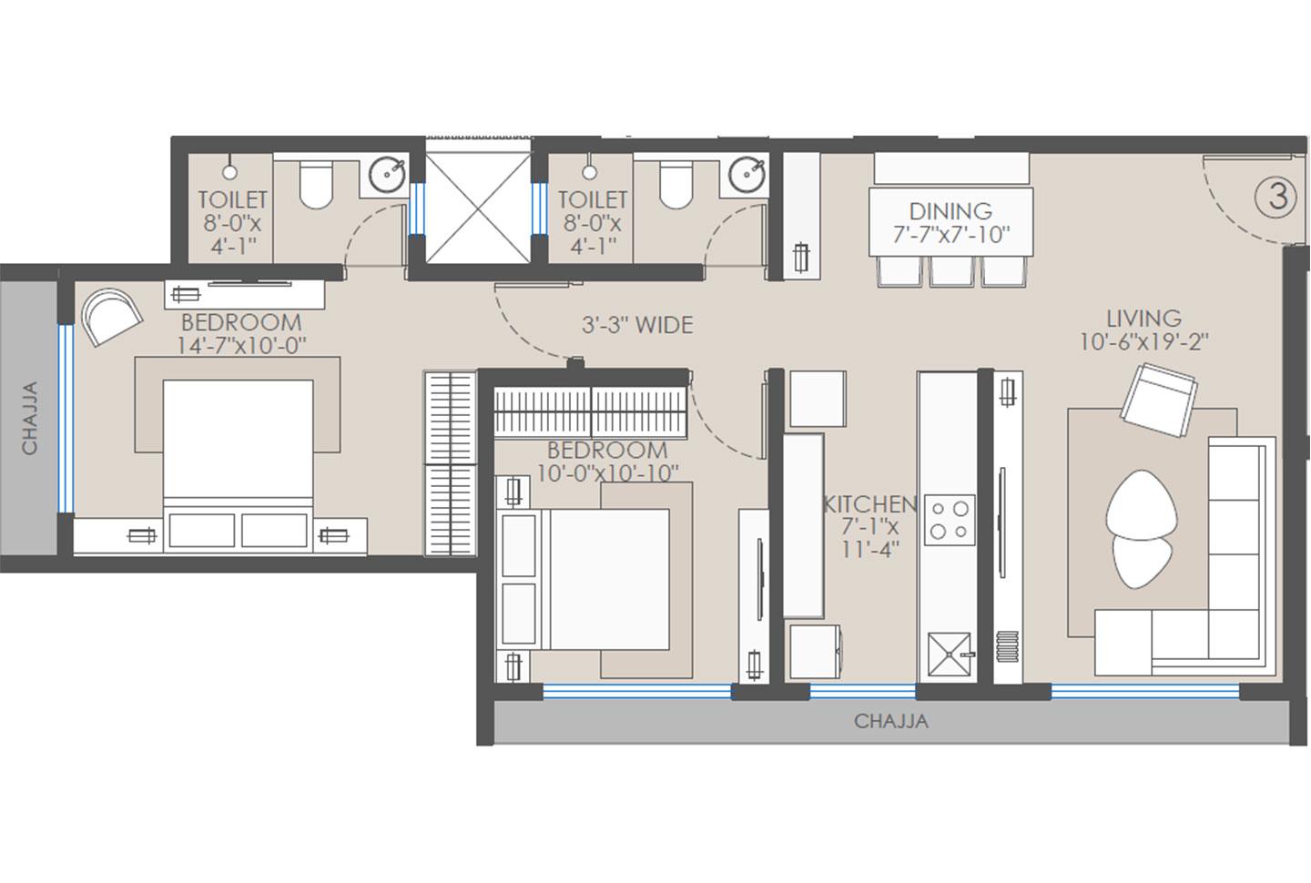
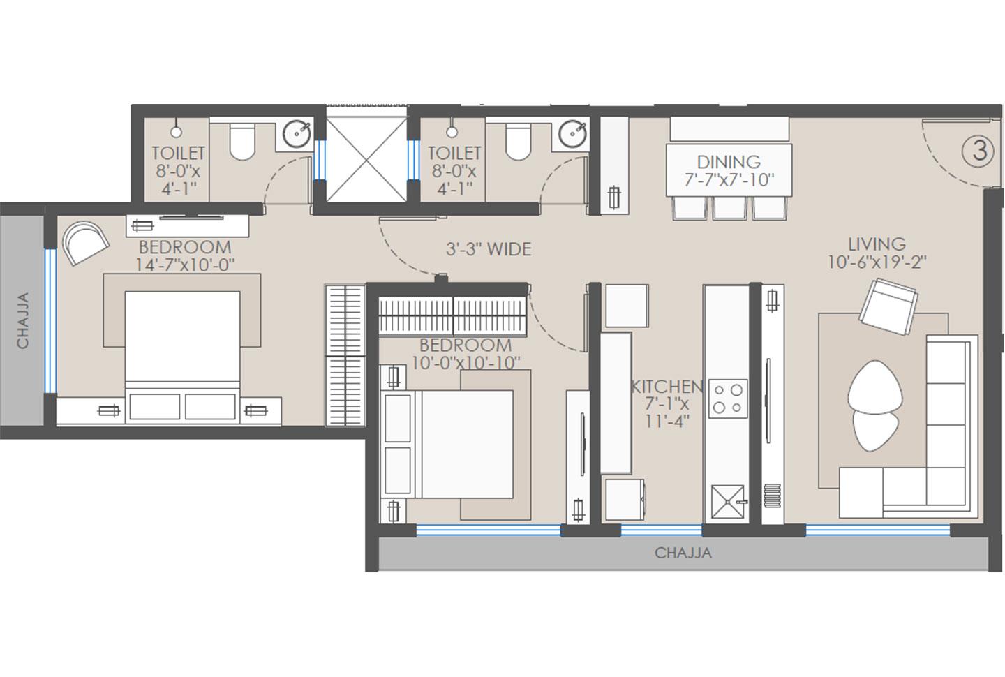
2 BHK Flats
Carpet Area : 729 Sq.ft, 744 Sq.ft.
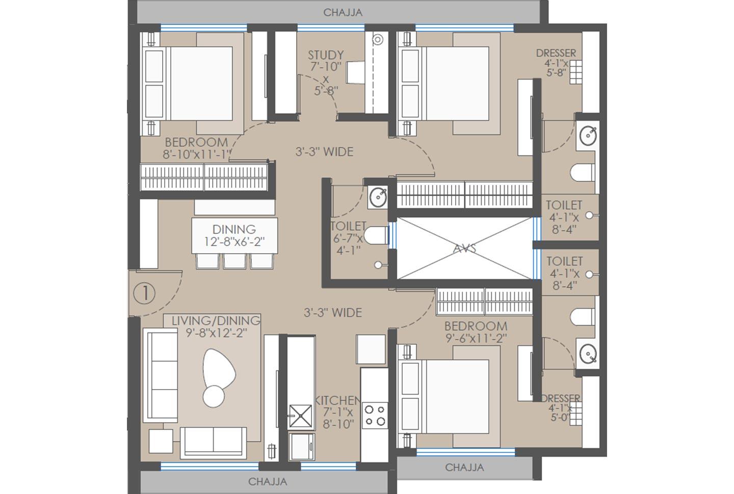
3 BHK Flats
Carpet Area : 881 Sq.ft.
Shops
171 Sq.ft, 278 Sq.ft, 534 Sq.ft, 722 Sq.ft, 749 Sq.ft.
Office Space
Carpet Area : 730 Sq.ft, 997 Sq.ft.
Building Details
Total project area 0.29 Acre / Total Floors - G+10 / Total Building - 1
Neighborhoods
Daily Market: 2 Mins
Hospital: 5 mins
Hotel & Restaurant: 2 Mins
School & College: 5 mins
Shopping Mall: 5 mins
Jain Mandir: 1 Min
Station
Railway Station: 5 mins
Metro Station: 4 mins
Airport
International airport: 30 mins
Sports
Goregaon Sports Club: 5 mins
Connectivity
WE Highway: 15 Mins
SV Road: 3 mins
Link Road: 3 mins
RERA Details
| Building Name | Possession | RERA ID |
|---|---|---|
| Sadguru Realty | Under Construction December 2027 |
P51800056502 View QR Code RERA Website: https://maharera.maharashtra.gov.in/ |
Amenities in Sadguru Avighna
Unit Details & Floor Plans in Sadguru Avighna
| Floor Plan | Inclusion | Area Details | Possession | Estimated Price |
|---|---|---|---|---|
![]() | 1 Bedroom1 Bathroom | Carpet Area : 428 Sq.ft | Under Construction December 2027 | 1.27 Cr ( 29673 per sq.ft) View Offers |
![]() | 1 Bedroom1 Bathroom | Carpet Area : 446 Sq.ft | Under Construction December 2027 | 1.32 Cr ( 29596 per sq.ft) View Offers |
| Floor Plan | Inclusion | Area Details | Possession | Estimated Price |
|---|---|---|---|---|
![]() | 2 Bedroom2 Bathroom | Carpet Area : 729 Sq.ft | Under Construction December 2027 | 2.16 Cr ( 29630 per sq.ft) View Offers |
![]() | 2 Bedroom2 Bathroom | Carpet Area : 744 Sq.ft | Under Construction December 2027 | 2.21 Cr ( 29704 per sq.ft) View Offers |
![]() | 2 Bedroom2 Bathroom | Carpet Area : 881 Sq.ft | Under Construction December 2027 | 2.61 Cr ( 29625 per sq.ft) View Offers |
| Floor Plan | Inclusion | Area Details | Possession | Estimated Price |
|---|---|---|---|---|
![]() | 1 Bathroom | Carpet Area : 171 Sq.ft | Under Construction December 2027 | 1.00 Cr ( 58480 per sq.ft) View Offers |
![]() | 1 Bathroom | Carpet Area : 278 Sq.ft | Under Construction December 2027 | 1.63 Cr ( 58633 per sq.ft) View Offers |
![]() | 1 Bathroom | Carpet Area : 534 Sq.ft | Under Construction December 2027 | 3.12 Cr ( 58427 per sq.ft) View Offers |
![]() | 1 Bathroom | Carpet Area : 722 Sq.ft | Under Construction December 2027 | 2.78 Cr ( 38504 per sq.ft) View Offers |
![]() | 1 Bathroom | Carpet Area : 730 Sq.ft | Under Construction December 2027 | 2.81 Cr ( 38493 per sq.ft) View Offers |
![]() | 1 Bathroom | Carpet Area : 749 Sq.ft | Under Construction December 2027 | 2.88 Cr ( 38451 per sq.ft) View Offers |
![]() | 1 Bathroom | Carpet Area : 997 Sq.ft | Under Construction December 2027 | 3.84 Cr ( 38516 per sq.ft) View Offers |
Property Experts in Sadguru Avighna
Sandeep Thakur
Area Expert Agent
Location
About Liberty Garden
LIBERTY GARDEN, MALAD WESTMalad a suburb on the western line of mumbai and also has a same name railway station. The railway tracks divide the suburb region in two zones Malad (East) and Malad (West).The locality has some residential landmarks like Raheja Exotica Sorento, Aruna Residency, K Raheja Palm Court, Kamanwala Manavsthal, Vikash Simran Heights and many other such residential landmarks.Other than residential landmarks the region have other landmarks like VLP Banquets, Flags Banquests, Ad... learn more ↗
Sadguru Avighna Location Map
Road No. 3, Liberty Garden, Malad West, Mumbai

Home Loan
Approved for this project by the following bank/s:
Interested in Home Loan?
Customized Home Loan Solutions, EMI Calculator, Check Eligibility & much more...
View More Resale & Rental Properties in Sadguru Avighna
in Sadguru Avighna
FAQs on Sadguru Avighna
(Frequently Asked Questions)
Where is Sadguru Avighna Exactly located?
Is Sadguru Avighna Rera Registered?
What are unit options available in Sadguru Avighna?
What is the starting price of Flats in Sadguru Avighna?
When is the Possession of Flats in Sadguru Avighna?
About Developer
Sadguru Realty
Sadguru Realty... learn more ↗
Enquire Now
Similar Residential Projects in Malad West Mumbai
Chandak Codename Nostalgia
by Chandak Group
2 BHK, 3 BHK Flats
Chincholi Bunder Road, Malad West, Mumbai
2 Cr Onwards
Ahuja Codename 1.2.7
by Ahuja Constructions
2 BHK, 2.5 BHK & 3 BHK
Ram Chandra Lane, Malad West, Mumbai
1.62 Cr Onwards
Laxmi Raaj Vilas
by Laxmidevi Developers
3 BHK, 4 BHK Flats
S V Road, Malad West, Mumbai
4.12 Cr* Onwards






















