About Origin Claremont in Goregaon East
The development provides an array of amenities aimed at enhancing both lifestyle and well-being. Residents can enjoy a landscaped garden, children’s play area, jogging track, and swimming pool, offering ample opportunities for recreation and relaxation. The clubhouse and community hall serve as vibrant social spaces where families can connect and celebrate special moments. Practical amenities like lifts, water storage, power backup, piped gas, 24X7 water supply, and visitor parking ensure ease of living, while safety is a priority with fire fighting systems, CCTV surveillance, and dedicated security personnel. The integration of rainwater harvesting, waste disposal, and internet connectivity demonstrates a commitment to sustainability and modern convenience.
Every home in Origin Claremont is designed to provide a premium living experience, with balconies that extend the living space and offer an outdoor retreat within the comfort of your own residence. The project follows Feng Shui and Vaastu principles, creating a harmonious and balanced environment that promotes positive energy. With its strategic location, superior design, and comprehensive amenities, Origin Claremont stands as a perfect destination for families seeking a refined, secure, and connected lifestyle in Goregaon East. It is more than just a residence; it is a community crafted for comfort, prestige, and modern living.
Unit Details :
2 BHK Flats
Carpet Area : 840 Sq.ft with Balcony
Carpet Area : 886 Sq.ft with Balcony
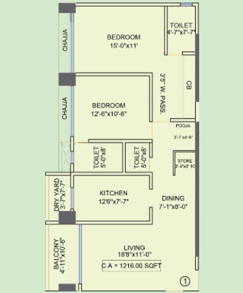
3 BHK Flats
Carpet Area : 1216 Sq.ft with Balcony
4 BHK Flats (2 BHK + 2 BHK Jodi )
Carpet Area : 1760 Sq.ft with Balcony
RERA Details
| Building Name | Possession | RERA ID |
|---|---|---|
| Origin Claremont | New Launch December 2028 |
P51800056047 View QR Code RERA Website: https://maharera.maharashtra.gov.in/ |
Amenities in Origin Claremont
Unit Details & Floor Plans in Origin Claremont
| Floor Plan | Inclusion | Area Details | Possession | Estimated Price |
|---|---|---|---|---|
![]() | 2 Bedroom2 Bathroom | Carpet Area : 840 Sq.ft | Under Construction December 2028 | 2.13 Cr ( 25357 per sq.ft) View Offers |
![]() | 2 Bedroom2 Bathroom | Carpet Area : 886 Sq.ft | Under Construction December 2028 | 2.24 Cr ( 25282 per sq.ft) View Offers |
| Floor Plan | Inclusion | Area Details | Possession | Estimated Price |
|---|---|---|---|---|
![]() | 2 Bedroom2 Bathroom | Carpet Area : 1216 Sq.ft | Under Construction December 2028 | 3.06 Cr ( 25164 per sq.ft) View Offers |
Property Experts in Origin Claremont
Sandeep Thakur
Area Expert Agent
Location
About Goregaon East
Goregaon East stands as Mumbai's premier investment destination, perfectly positioned in the heart of the western suburbs with unparalleled connectivity and growth prospects. This vibrant locality seamlessly blends residential comfort with commercial dynamism, making it an ideal choice for both end-users and investors seeking exceptional real estate opportunities. The transformation of Goregaon East into a modern urban hub has been accelerated by the operational Metro Line 7, connecting residen... learn more ↗
Origin Claremont Location Map
Dindoshi, Goregaon East, Mumbai
Home Loan
Approved for this project by the following bank/s:
Interested in Home Loan?
Customized Home Loan Solutions, EMI Calculator, Check Eligibility & much more...
View More Resale & Rental Properties in Origin Claremont
in Origin Claremont
FAQs on Origin Claremont
(Frequently Asked Questions)
Where is Origin Claremont Exactly located?
Is Origin Claremont Rera Registered?
What are unit options available in Origin Claremont?
What is the starting price of Flats in Origin Claremont?
When is the Possession of Flats in Origin Claremont?
About Developer
Origin Corp
Origin Corp... learn more ↗
Enquire Now
Similar Residential Projects in Goregaon East Mumbai
Oberoi Elysian Tower B
by Oberoi Realty
3 BHK & 4 BHK
Yashodham, Goregaon East, Mumbai
4.66 Cr Onwards*
Rachaita Aarambh
by Rachaita Developers
1 RK, 1 BHK, 2 BHK Flats
Aarey Road, Goregaon East, Mumbai
63 Lacs Onwards*
Oberoi Elysian Tower A
by Oberoi Realty
3 BHK & 4 BHK Luxury Homes
Gokuldham, Goregaon East, Mumbai
6.10 Cr Onwards*
IM Buildcon Codename Above And Beyond
by IM BUILDCON
2 BHK & 3 BHK Flats
Goregaon - Mulund Link Rd, Goregaon East, Mumbai
1.89 Cr Onwards*
Aspen Park
by Divine Space
1 BHK, 1.5 BHK and 2 BHK Flats
Walbhat Road, Goregaon East, Mumbai
1.08 Cr Onwards*
Group Satellite Elegance
by Group Satellite
1 BHK & 2 BHK Apartments
Film City Road, Goregaon East, Mumbai
1.01 Cr Onwards

















