About DGS Sheetal Infinity in Goregaon East
DGS Sheetal Infinity offers premium 2 BHK, 3 BHK Flats in Goregaon East, Mumbai. With modern amenities, spacious layouts, and a prime location in Gokuldham, it redefines urban living. Explore floor plans, prices, and reviews today!
At DGS Sheetal infinity, Goregaon East, mumbai. Offer 2 BHK & 3 BHK Get Download, location & Map, Price, Floor Plan, Brochure, sample flat, Project reviews, complaints, Near Station, Possession Date, Payment Plan, Cost Sheet, We are committed to exceeding the client's expectations while focusing on their best interests, and creating long-term relationships. Our top-notch lifestyle solutions, designed as per international standards, keep our clients's trust in us.Plot Area :2,859.10 sq.mt.
Ground, 2 Floor Commercial, 4 Floor Podium, 1E-Level, 24 Residential
Refuge Area: 1st Floor, 8th Floor, 13th Floor &22nd Floor
If you are planning to buy a good residential property in Goregaon East then this DGS Sheetal Infinity is indeed a very good choice for you.
Real estate in Goregaon East has come a long way and the construction quality of new homes in Goregaon East is extremely good. This residential project called DGS Sheetal Infinity has been developed with a lot of care and attention both in terms of planning as well in terms of execution of the construction by DGS Group.
A very professional group of project designers, architects, civil contractors, etc. have come together to deliver a very good residential project for sale in Goregaon East. The materials used to develop this real estate project have been selected carefully to ensure that the construction is of very good quality.
All the aspects of this real estate project in Goregaon East have been meticulously thought of perfectly and have been precisely implemented to make certain that owner of a home in DGS Sheetal Infinity is able to enjoy all the facilities and amenities here along with his or her family.
All the hard work and systematic process put in place is to make certain that this residential project development in Goregaon East is able to deliver a very good experience for the buyers of property for sale in DGS Sheetal Infinity
The fact that DGS Sheetal Infinity has a good standard of development combined with the location advantage that it provides you in Goregaon East adds to the charm of this real estate project in Goregaon East.
This is definitely a very good real estate development in Goregaon East and any family, individual moving here and calling it his home will surely relish this experience for many years to come.
For Further Details, Assistance, RERA Number, Price Plans, Architectural Details Kindly Phone Us, Mail Us Or Fill The Query Form.
Unit Details :
2 BHK Flats
Carpet Area : 575 Sq.ft, 655 Sq.ft
Carpet Area : 675 Sq.ft, 715 Sq.ft, 745 Sq.ft, 780 Sq.ft (With Balcony)
3 BHK Flats
Carpet Area : 836 Sq.ft, 860 Sq.ft (With Balcony)
Building Details
1 Acre / Ground + Commercial Space + 4 Level of Podium Parking + 26 Habitable Floors
RERA Details
| Building Name | Possession | RERA ID |
|---|---|---|
| DGS Sheetal Infinity | New Launch June 2027 |
P51800054964 View QR Code RERA Website: https://maharera.maharashtra.gov.in/ |
Amenities in DGS Sheetal Infinity
Unit Details & Floor Plans in DGS Sheetal Infinity
| Floor Plan | Inclusion | Area Details | Possession | Estimated Price |
|---|---|---|---|---|
![]() | 2 Bedroom2 Bathroom | Carpet Area : 575 Sq.ft | Under Construction June 2027 | 1.50 Cr ( 26087 per sq.ft) View Offers |
![]() | 2 Bedroom2 Bathroom | Carpet Area : 655 Sq.ft | Under Construction June 2027 | 1.71 Cr ( 26107 per sq.ft) View Offers |
![]() | 2 Bedroom2 Bathroom1 Balcony | Carpet Area : 675 Sq.ft | Under Construction June 2027 | 1.76 Cr ( 26074 per sq.ft) View Offers |
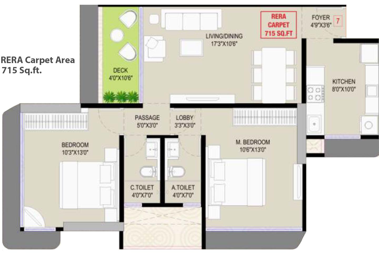
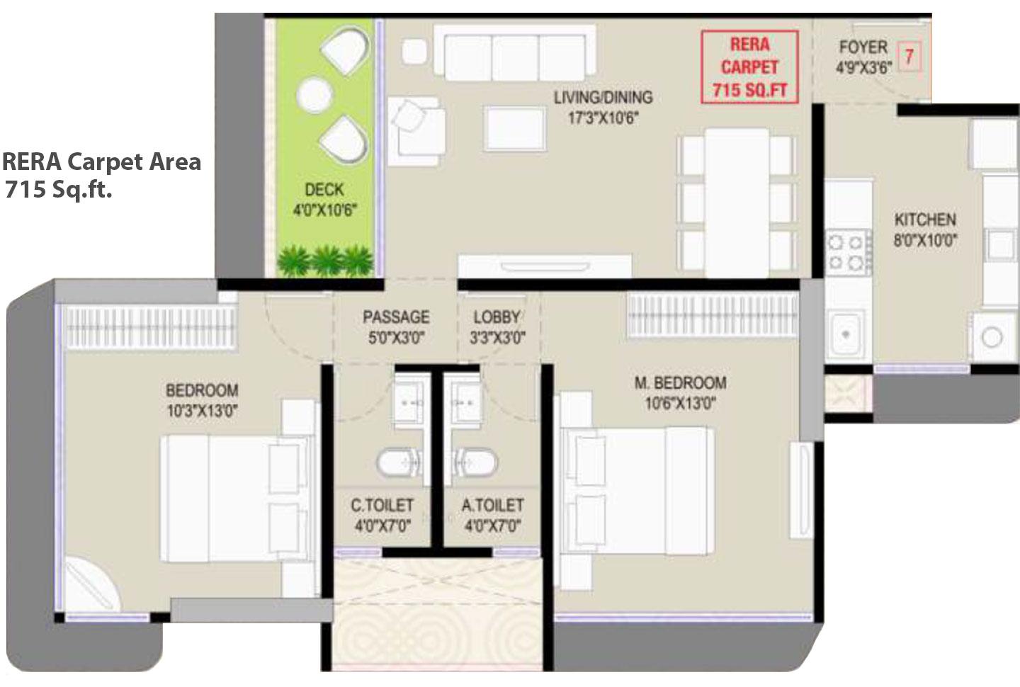
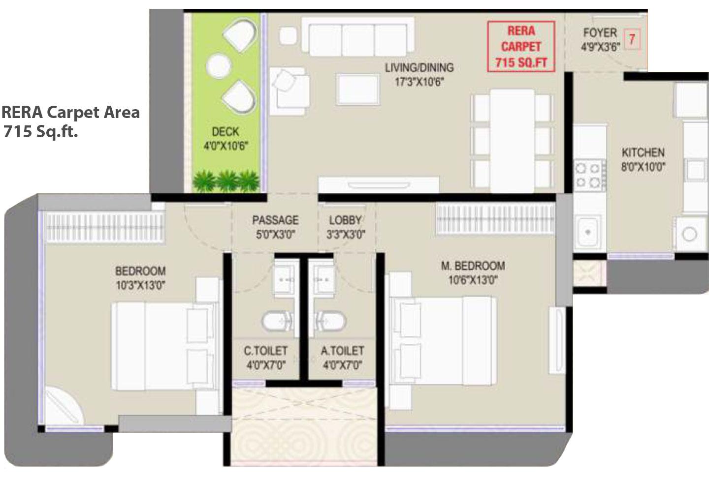
![]() | 2 Bedroom2 Bathroom1 Balcony | Carpet Area : 715 Sq.ft | Under Construction June 2027 | 1.87 Cr ( 26154 per sq.ft) View Offers |
![]() | 2 Bedroom2 Bathroom1 Balcony | Carpet Area : 745 Sq.ft | Under Construction June 2027 | 1.94 Cr ( 26040 per sq.ft) View Offers |
![]() | 2 Bedroom2 Bathroom1 Balcony | Carpet Area : 780 Sq.ft | Under Construction June 2027 | 2.03 Cr ( 26026 per sq.ft) View Offers |
| Floor Plan | Inclusion | Area Details | Possession | Estimated Price |
|---|---|---|---|---|
![]() | 3 Bedroom3 Bathroom1 Balcony | Carpet Area : 836 Sq.ft | Under Construction June 2027 | 2.18 Cr ( 26108 per sq.ft) View Offers |
![]() | 3 Bedroom3 Bathroom1 Balcony | Carpet Area : 860 Sq.ft | Under Construction June 2027 | 2.24 Cr ( 26047 per sq.ft) View Offers |
Property Experts in DGS Sheetal Infinity
Sandeep Thakur
Area Expert Agent
Location
About Goregaon East
Goregaon East stands as Mumbai's premier investment destination, perfectly positioned in the heart of the western suburbs with unparalleled connectivity and growth prospects. This vibrant locality seamlessly blends residential comfort with commercial dynamism, making it an ideal choice for both end-users and investors seeking exceptional real estate opportunities. The transformation of Goregaon East into a modern urban hub has been accelerated by the operational Metro Line 7, connecting residen... learn more ↗
DGS Sheetal Infinity Location Map
Gokuldham, Goregaon East, Mumbai

Home Loan
Approved for this project by the following bank/s:
Interested in Home Loan?
Customized Home Loan Solutions, EMI Calculator, Check Eligibility & much more...
View More Resale & Rental Properties in DGS Sheetal Infinity
in DGS Sheetal Infinity
FAQs on DGS Sheetal Infinity
(Frequently Asked Questions)
Where is DGS Sheetal Infinity Exactly located?
Is DGS Sheetal Infinity Rera Registered?
What are unit options available in DGS Sheetal Infinity?
What is the starting price of Flats in DGS Sheetal Infinity?
When is the Possession of Flats in DGS Sheetal Infinity?
About Developer
DGS Group
The Group takes pride in having completed numerous projects in the suburbs of Mumbai and Thane, with several more underway. Starting its business in 1991 with the supply of sand and cement to the construction industry,over the years, the DGS Group has earned and established a strong reputation for itself for its high quality real estate development work, eco-friendly. Architectural practices, world-class amenities, superior infrastructure, modern... learn more ↗
Enquire Now
Similar Residential Projects in Goregaon East Mumbai
Oberoi Elysian Tower B
by Oberoi Realty
3 BHK & 4 BHK
Yashodham, Goregaon East, Mumbai
4.66 Cr Onwards*
Rachaita Aarambh
by Rachaita Developers
1 RK, 1 BHK, 2 BHK Flats
Aarey Road, Goregaon East, Mumbai
63 Lacs Onwards*
Oberoi Elysian Tower A
by Oberoi Realty
3 BHK & 4 BHK Luxury Homes
Gokuldham, Goregaon East, Mumbai
6.10 Cr Onwards*
IM Buildcon Codename Above And Beyond
by IM BUILDCON
2 BHK & 3 BHK Flats
Goregaon - Mulund Link Rd, Goregaon East, Mumbai
1.89 Cr Onwards*
Aspen Park
by Divine Space
1 BHK, 1.5 BHK and 2 BHK Flats
Walbhat Road, Goregaon East, Mumbai
1.08 Cr Onwards*
Group Satellite Elegance
by Group Satellite
1 BHK & 2 BHK Apartments
Film City Road, Goregaon East, Mumbai
1.01 Cr Onwards






















