About Property
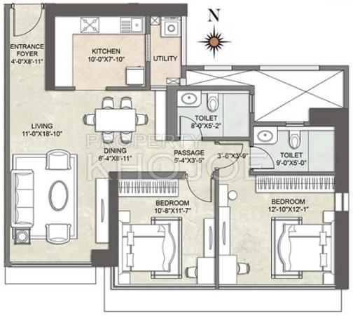
Experience this wonderful flat for sale in flourishing Mumbai, beautifully located in the accessible Bhandup West neighborhood that combines metropolitan convenience with peaceful residential living. This charming property is part of the respected Kalpataru Crest Bhandup West development, known for its quality construction and resident-focused amenities. The strategic LBS Marg area ensures excellent connectivity to major employment hubs and essential community services for comfortable daily routines. The thoughtful 3 BHK design maximizes living comfort while providing practical room arrangements that suit diverse family requirements. Encompassing a comfortable area of 1576 Sq.ft of well-organized living space, this flat balances spaciousness with efficient layout planning. Conveniently placed on the 15 floor, offering residents the perfect combination of accessibility and residential tranquility. The beneficial North orientation maximizes natural light penetration and air circulation, ensuring pleasant indoor environmental conditions. Currently available in Un-Furnished condition, providing buyers with options for immediate occupancy or customized interior design projects. . .
Amenities
Agent Details
Location
Kalpataru Crest Bhandup West Location Map
LBS Marg, Bhandup West - Mumbai
Home Loan
Interested in Home Loan?
Customized Home Loan Solutions, EMI Calculator, Check Eligibility & much more...
View MoreEnquire Now
Similar Properties
3 BHK Flat for Sale
LBS Marg, Bhandup West, Mumbai
1019 Sq.ft Built-up
3 BHK Flat with an Built-up area of 1019 Sq.ft available for Sale at LBS Marg, Bhandup West, Mumbai in a good and well maintained society name as Neptune Flying Kite , its a storey structure. Residents can do interior as per their requirement. The Building provides extra features. Families residing at Neptune Flying Kite enjoy close proximity to mall, school, college, hospital, bus stop and amusement park. Please do enquire for more further details.
2.70 Cr
Dinesh Tripathi
Agent
3 BHK Flat for Sale
LBS Marg, Bhandup West, Mumbai
On Request - -
3 BHK Flat with an area of On Request available for Sale at LBS Marg, Bhandup West, Mumbai in a good and well maintained society name as Lodha Corinthia Tower 6 , its a storey structure. Residents can do interior as per their requirement. The Building provides extra features. Families residing at Lodha Corinthia Tower 6 enjoy close proximity to mall, school, college, hospital, bus stop and amusement park. Please do enquire for more further details.
2.63 Cr
Robin
Agent
3 BHK Flat for Sale
LBS Marg, Bhandup West, Mumbai
950 Sq.ft Carpet
North facing 3 BHK Flat for Sale and is available in the promising locality of LBS Marg, Bhandup West, Mumbai. It is a New Launch - Possession Around March 2031 Flat and is located on the higher floor. Every single detail of the flat is carefully designed. This feng shui/vaastu compliant property offers quality facilities. The price of the property is estimated at 2.41 Cr (0% Brokerage). The unit has a Carpet area of 950 Sq.ft. It has bathrooms. And has Vitrified flooring. Please contact for more details.
2.41 Cr
Deepak Kewlani
Agent
3 BHK Flat for Sale
LBS Marg, Bhandup West, Mumbai
1090 Sq.ft Carpet
A 3 BHK Flat, located in LBS Marg, Bhandup West, Mumbai is available for Sale. It is a New Launch Flat. Situated in a prominent locality, the property is in its best condition. The Flat is situated on the higher floor. Aesthetically designed with Vitrified flooring, this property has bathroom. The Flat has a good view of the locality. The Flat has a Carpet area of 1090 Sq.ft. The Flat is located in a gated society and offers good security. It offers a number of important facilities. The unit has Car parking and full power backup. Please contact for further details.
3.45 Cr
Shantaram Sawant
Agent







