About Acron Uplands in Mapusa
The complex provides you various amenities like Kids Play Area, Gym Space, Landscaped Garden Area, Security Space, Rain Water Harvesting System, Sewage Treatment, Video Door Phone Service, Earthquake Resistant etc. The complex provides you a standard specification system. The complex is ready to move in since April 2016.
The property located at North Goa, Mapusa, Nachinola offers you a well settled community like Bank of India, Ganpati Temple, St Anthony’s Chapel, Chapel, St Xaviers High School, The Cube Gallery, St Rita Chapel, Church Danva, Sai Bakti Mandir etc. The complex is has an well road network like Mapusa-Bicholim Road, Mapusa-Moira-Aldona, Mapusa-Moira-Aldona-Corjuem Road etc.
For Further Details, Information, Assistance, RERA Number Kindly Call Us Or Mail Us.
ABOUT DEVELOPER-Acron Developers Pvt Ltd
Acron Developers Pvt Ltd offer the discerning home-buyer a selection of apartments, detached and semi-detached villas in low-rise, low-density and purely residential developments which have gardens, swimming pools, club-houses with gyms, saunas, steams, jacuzzi’s and other recreational amenities at quiet, peaceful locations away from the busy areas and yet close to the beaches, shops and services
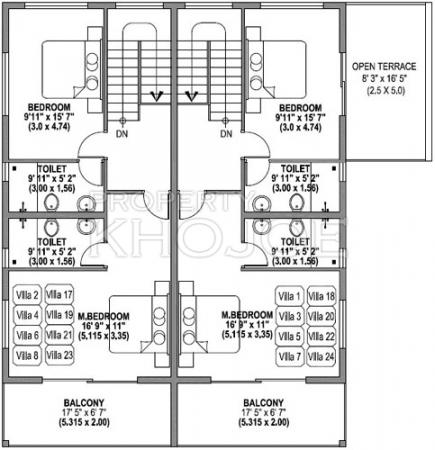
Unit Details :
3 BHK Villas :
Area : 1869 Sq.ft To 2152 Sq.ft
Building Details :
24 units \ 2 Acres
Amenities in Acron Uplands
Sewage Treatment
Modular Kitchen
Video Door Phone
Specifications
Balcony: Anti Skid Tiles
Kitchen: Vitrified Tiles
Living/Dining: Vitrified Tiles
Master Bedroom: Vitrified Tiles
Other Bedroom: Vitrified Tiles
Toilets: Anti Skid Tiles
Fittings :
Doors: Hardwood Frames
Electrical: Modular Switches
Kitchen: Granite Platform
Windows: UPVC Windows
Toilets: Sanitary Ware
Others: Standard
Walls :
Exterior: Weather Proof
Interior: Acrylic Emulsion
Kitchen: Dado Tiles
Toilets: Standrad
Location
About Mapusa
Real Estate in Mapusa, North Goa, continues to attract considerable attention from both homebuyers and investors alike. This vibrant locality offers a unique proposition, blending the convenience of urban amenities with the relaxed Goan lifestyle. The demand for properties here is consistently robust, driven by its strategic location and burgeoning development. For those looking to buy or sell, Mapusa presents a dynamic market with diverse opportunities across residential and commercial segments... learn more ↗
Acron Uplands Location Map
Nachinola, Mapusa, North Goa
Home Loan
Approved for this project by the following bank/s:
Interested in Home Loan?
Customized Home Loan Solutions, EMI Calculator, Check Eligibility & much more...
View More Resale & Rental Properties in Acron Uplands
in Acron Uplands
FAQs on Acron Uplands
(Frequently Asked Questions)
Where is Acron Uplands Exactly located?
What are unit options available in Acron Uplands?
What is the starting price of Independent House / Villas / Bungalows in Acron Uplands?
When is the Possession of Independent House / Villas / Bungalows in Acron Uplands?
What are the nearest landmarks?
About Developer
Acron Developers Pvt. Ltd
Acron is called after a former ancient greek word "akron" indicating highest extreme and even farthest bounds. Amar Britto & Dr. John Britto, the Directors of Acron are immensely qualified and their excellent diplomacy frequently create a win-win situation for clients as well as the organization. The objective, vision and business theory since the inception of Acrons, Goa in 1988 is without a doubt to widen the envelope and attain the finest ... learn more ↗
Enquire Now
Similar Residential Projects in Mapusa North Goa
V D Casa Braganza
by V D Engineering and Real Estate Developers
1 BHK, 2 BHK Flats
Mapusa, North Goa
On Request

















